England Manchester National Graphene Institute
设计方:Jestico + Whiles
位置:英国
分类:办公建筑
内容:实景照片
图片:22张
摄影师:Hufton+Crow, Daniel Shearing

这是由Jestico + Whiles设计的国家石墨烯研究院,位于曼彻斯特大学。该项目于2012年委托给Jestico + Whiles负责,并与KostyaNovoselov先生密切合作。KostyaNovoselov先生曾于2004年与Andre Geim先生合作,在曼彻斯特大学首次分离出石墨烯。这两位共同被颁发2010年诺贝尔物理奖。建筑师设计了一座世界领先的研究创意中心,致力于石墨烯的发展,并将成为英国投标重要的一部分,保留其在先进、前沿材料商业化的开创性地位。
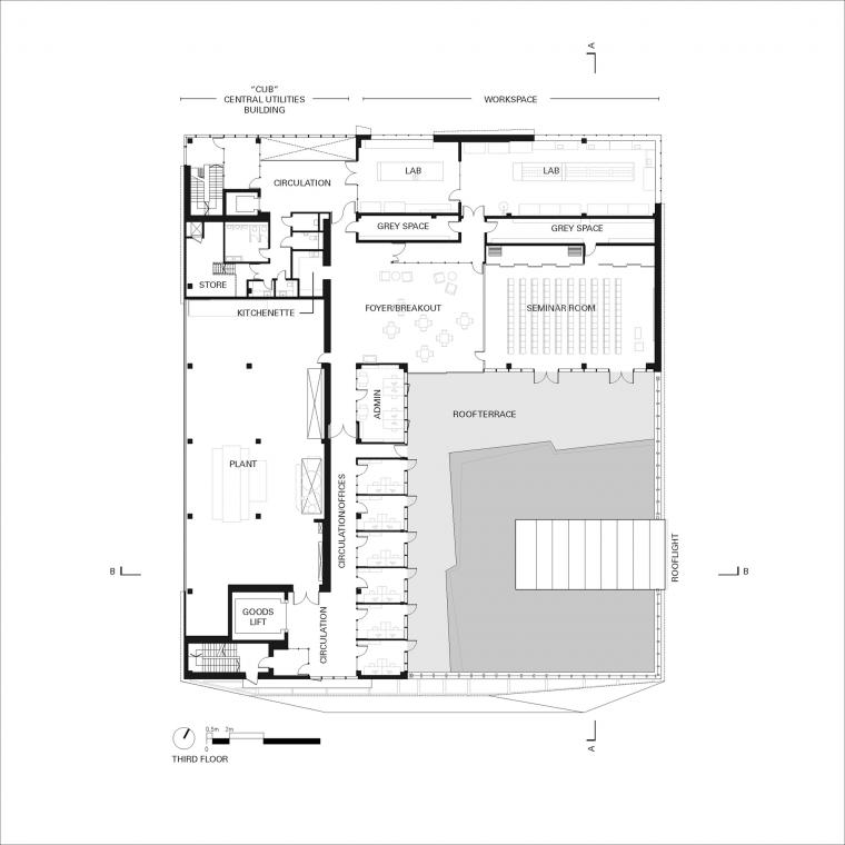
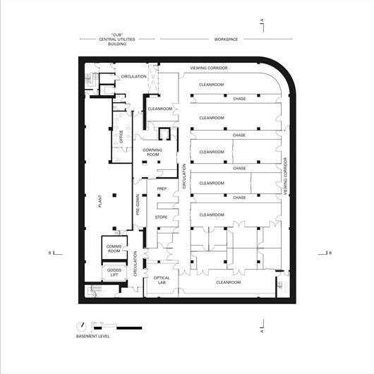
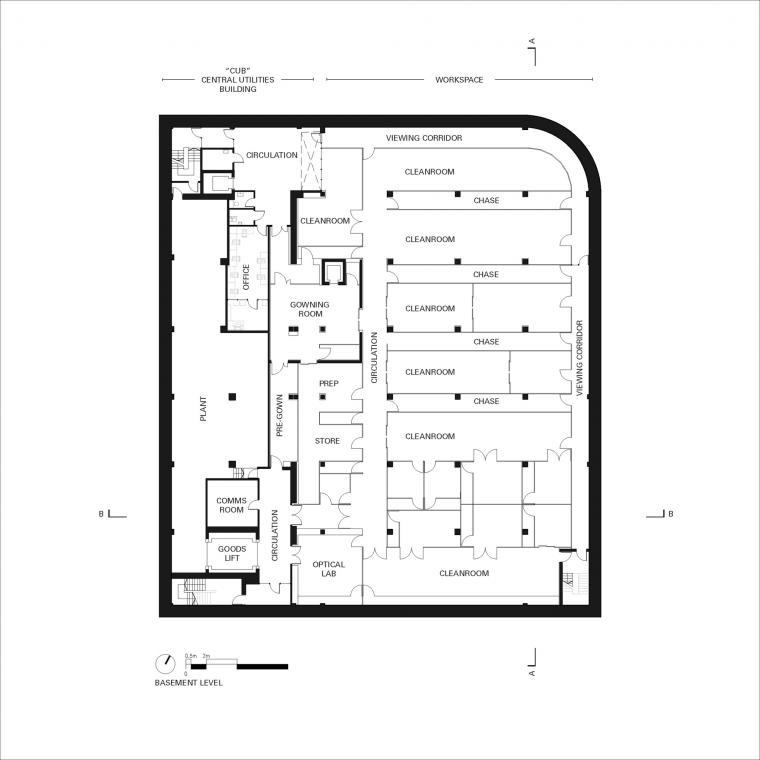
该项目是一个紧凑布局的建筑,共五层,总建筑面积达7825平方米。主洁净室布置在较低的楼层,以实现最佳的振动性能。洁净室的天花板以巧妙的角度设计,让洁净室和科学家均对公众可见。该建筑还设计了另一个洁净室,包括激光器、光学、计量和化学实验室、办公室、会议室等辅助用房,屋顶设有多样化的屋顶花园。
译者:艾比
From the architect. Jestico + Whiles was appointed lead architect for the new National Graphene Institute at The University of Manchester in 2012, working closely with Sir KostyaNovoselov – who, along with Sir Andre Geim, first isolated graphene at The University of Manchester in 2004. The two were jointly awarded the Nobel Prize in Physics in 2010.
Jestico + Whiles’ design delivers a world-leading research and incubator centre which is dedicated to the development of graphene and will be an essential component in UK’s bid to remain at the forefront of the commercialisation of this pioneering and revolutionary material.Located in the University Campus’ Science Quarter, the National Graphene Institute is housed in a compact 7,825m2 five-storey building, with the main cleanroom located on the lower ground floor to achieve best vibration performance. The ceiling of the clean room is cleverly angled all the way around the outside of the building so that from the pavement, the cleanroom and scientists are visible to the public.
The building also includes a second cleanroom in addition to laser, optical, metrology and chemical laboratories, offices and ancillary accommodation such as a seminar room that opens out on to a roof terrace with a bio-diverse roof garden.Offices and labs are intermixed on all floors to offer individual research teams the facilities needed to operate coherently in one area. These teams are expected to include industry partners that will collaborate on research with the University. More than 35 companies from across the world have already chosen to partner with The University of Manchester on graphene-related projects.
The building is enclosed by an economic inner skin comprising a proprietary composite cladding panel system that provides weather tightness and thermal insulation and accommodates flush windows and other openings as required. Fixed to the outside of this inner skin is a separate perforated stainless steel ‘veil’ which wraps around the volumes of the disparate elements of the building continuously to provide a unifying texture and coherent, fluid shape.The ‘veil’ is made of hundreds of black mirror stainless steel panels, each one containing thousands of perforations that make up the equations used in graphene research.Led by EC Harris through the OGC Framework, the design team also includes CH2M Hill, which has provided specialist architectural laboratory design and M&E consultant services, and Ramboll, which provided Civil and Structural services.

英国曼彻斯特国家石墨烯研究院外部实景图

英国曼彻斯特国家石墨烯研究院外部实景图

英国曼彻斯特国家石墨烯研究院外部实景图

英国曼彻斯特国家石墨烯研究院外部实景图

英国曼彻斯特国家石墨烯研究院外部夜景实景图

英国曼彻斯特国家石墨烯研究院外部夜景实景图

英国曼彻斯特国家石墨烯研究院内部实景图

英国曼彻斯特国家石墨烯研究院内部实景图

英国曼彻斯特国家石墨烯研究院内部实景图

英国曼彻斯特国家石墨烯研究院内部实景图

英国曼彻斯特国家石墨烯研究院平面图

英国曼彻斯特国家石墨烯研究院平面图

英国曼彻斯特国家石墨烯研究院平面图

英国曼彻斯特国家石墨烯研究院平面图

英国曼彻斯特国家石墨烯研究院平面图

英国曼彻斯特国家石墨烯研究院平面图

英国曼彻斯特国家石墨烯研究院平面图

英国曼彻斯特国家石墨烯研究院平面图

英国曼彻斯特国家石墨烯研究院平面图

英国曼彻斯特国家石墨烯研究院剖面图

英国曼彻斯特国家石墨烯研究院剖面图
本文来自筑龙学社,本文观点不代表石墨烯网立场,转载请联系原作者。
